山口市の不動産−賃貸【アパート、マンション 、一戸建、店舗】売買【土地、建物、収益物件】の情報。

工事中

 
TOP > アパート・マンション検索フォーム >  詳細画面 物件No.4760


物件名 プロムノワール湯田温泉駅前 シャンパーニュ 所在地 山口県山口市今井町
最寄り駅 JR山口線 湯田温泉駅  駅徒歩5分以内
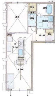
家 賃 6.5 万円   タイプ 1LDK  
専有面積 41.94 m2   ( 坪)

外観写真 間取り図
  ※ 現況と異なる場合は現況を優先致します。
その他写真1 その他写真2
その他写真3 その他写真4
その他写真5 その他写真6
その他写真7 その他写真8
その他写真9 その他写真10
その他写真11 その他写真12
その他写真13 その他写真14
その他写真15 その他写真16
その他写真17 その他写真18
その他写真19 その他写真20
地図と周辺物件  
 

駅近角部屋カウンターキッチンシステムキッチン追い炊き機能付きケーブルテレビシャワートイレエアコン風呂トイレセパレート平面駐車場車庫証明可1階の物件NET対応駐車場コンビニ近し
・・・アイコンについて
一覧へ戻る  カートに入れる 

物件名 プロムノワール湯田温泉駅前 シャンパーニュ  
物件種類  アパート
所在 山口県山口市今井町
家賃 6.5万円
タイプ 1LDK  
間取り 5.4洋・12.2LDK
住居面積 41.94 m2  ( 坪)
構造 軽量鉄骨造 2 階建 1 階部分 総戸数5
建築年月 2013 年 7月  
入居 26年 3月 上旬
最寄り駅 JR山口線 湯田温泉駅 駅徒歩5
地区 湯田地区
共益費 5,000円
敷金 / 礼金 0ヶ月 / 2ヶ月
敷地内駐車場 駐車場:有 空き:現在空き有 駐車料:円
取引態様 仲介
コメント 市水道、水洗、給湯、都市ガス(キッチンIH)/鍵代16500円/安心サポート月額1320円/シャイド55仕様/湯田温泉駅まで徒歩約3分♪ご入居にかかる諸費用として、クリーニング特約料87340円(税込)が必要です。
こだわり1 駅近/角部屋/カウンターキッチン/システムキッチン/追い炊き機能付き/ケーブルテレビ/床下収納/シャワー付洗面化粧台/TVモニター付インターホン/シャワートイレ/エアコン/風呂トイレセパレート/室内洗濯機置き場/平面駐車場/車庫証明可/1階の物件/更新時費用あり/浴室乾燥機/NET対応/IHコンロ/敷金なし/成約プレゼント/保証人不要システム
こだわり2 コンビニ近し/あつあつカップル/山口不動産おすすめ
空室表示

説 明
☆保証契約加入要→保証料月額:賃料等の2%,保証委託契約事務手数料:新規初回33000円費用等詳細は担当者までお問い合わせください。♪借家人賠償保険等のご加入が必要です。

この物件を見ている人は、このような物件も見ています。  
ホワイトパレス山口T番館
マンション 湯田地区
1R 1.7万円
日当たり良好/TVモニター付インターホン/エレベータ…
 
パストラスB
アパート 大内地区
2LDK 4.4万円
角部屋/追い炊き機能付き/ケーブルテレビ/各部屋独立…
 
ホワイトパレス山口T番館
マンション 湯田地区
1R 2万円
日当たり良好/眺望良好/TVモニター付インターホン/…
 
オオカワビル
ハイツ 吉敷地区
1K 2.6万円
日当たり良好/ケーブルテレビ/エアコン/平面駐車場/…
 

お問合わせ 会社ご案内
市内を中心として営業しております。賃貸物件・マンスリー物件・売買件・開発物件etc取り扱っております。リクエスト、査定見積もり致します。

TEL: 083-932-3030   山口不動産株式会社 担当:藤岡

ホームページの物件No.4760 プロムノワール湯田温泉駅前 シャンパーニュ の家賃 6.5万円の物件についてとご連絡下さい。

所在: 山口県山口市吉敷中東4丁目2番13号  <湯田温泉駅>

営業時間: 9:00〜18:00 定休日: 日曜・祝祭日

【メールでのお問合せは】 → → 

 このページのTOPへ戻る

 
51年の会社としての歴史がお客様の信頼の証です。
   
|   TOP   |  査定・調査依頼  |  お役立ち情報  |   リンク  | プライバシーポリシー  |  会社案内  | お問い合わせ

Copyright (C) 2008 山口不動産株式会社 All rights reserved.